
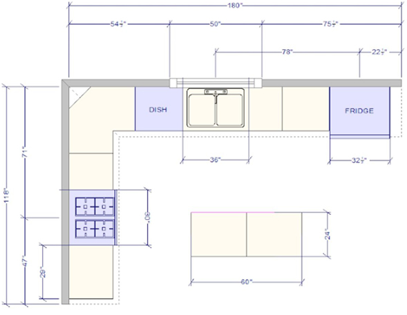
- Width of stove
- Width & height of fridge
- Width of sink
- Dishwasher
- Hood
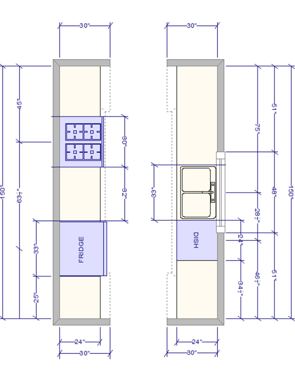
- Width of stove
- Width & height of fridge
- Width of sink
- Dishwasher
- Hood

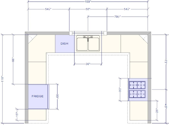
- Width of stove
- Width & height of fridge
- Width of sink
- Dishwasher
- Hood